Conversion >>

Home >>

Projects >>

The Foundry Lofts

 

THE FOUNDRY LOFTS

 

Location:

 

Project:

 

 

 

 

 

 

 

 

 

Our Task:

 

 

 

Architect:

 

 

Developer:

 

 

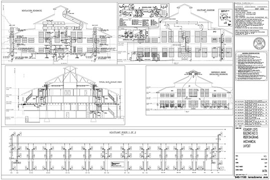
1100 Lansdowne Ave., Toronto, Ontario

 

This building used to be an industrial building for General Electric and at one time electrical locomotives were built here. The building is over 100 years old. It has been converted into 104 lofts suites and an open atrium of approximately 20,000 sq. ft. This is one of the few authentic loft buildings in Toronto.

 

 

The heating and air condition is a closed loop heat-pump system. The atrium is heated and air conditioned as well.

 

Attila Burka Architects Inc. /

Ferdinand Wagner Architect

 

E-Park Development Corporation /

Tom Falus

Copyright © CSEI-Intron Engineering Inc. All rights reserved

Site developed by:

Doxa Marketing